HOME TYPE家づくりのプラン
LIZUM HOME でご提案しているプランの一部をご紹介します。
建物の形状を四角にすることにより、コストパフォーマンスを最大限に追求するプラン。
単なるローコストではなく、生活するうえで必須の耐震性・断熱性・気密性は妥協することなく、建物形状をシンプルにすることでコストダウンを図ったプランになります。
掲載しているプラン以外にもHACOシリーズはございます。
-
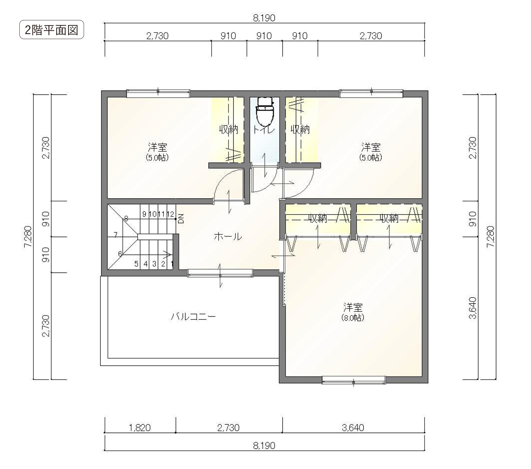
HACO 01 必要な場所に必要な収納計画2,300 万円(参考価格)
スッキリとした生活を送る上で必要不可欠な収納。玄関にはベビーカーもそのまま入れられる大容量のシューズクローク。お風呂上りの着替えや室内干し後、動線を考えたファミリークローゼット。リビングにはお子様のおもちゃ・ゲーム機器など使い勝手良い収納スペース。ただ収納を沢山作るだけではなく、各ご家庭の生活に合わせたプランをご提案いたします。 -
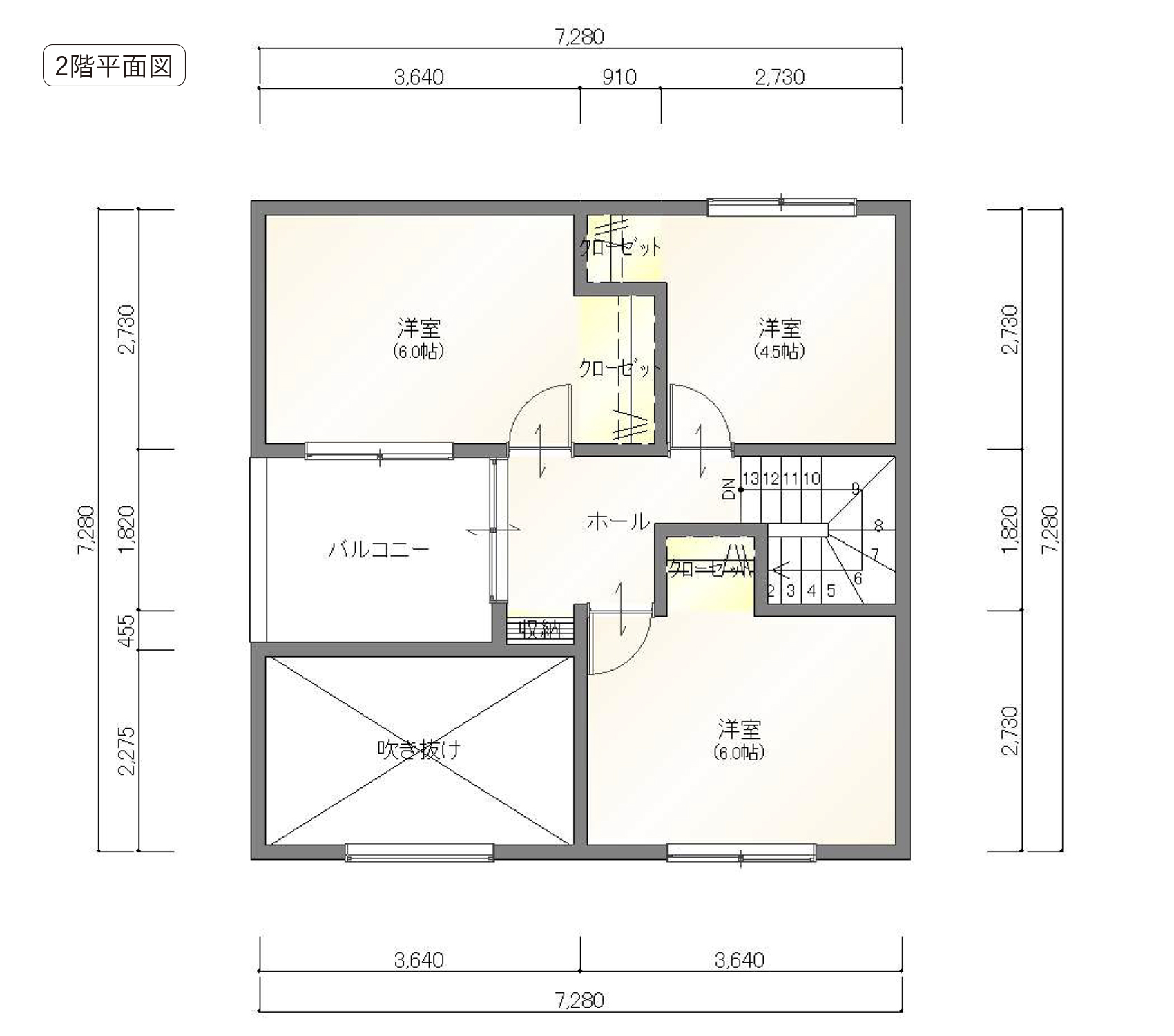
HACO 02 玄関から広がるLDK空間2,200 万円(参考価格)
『少しでも広がりのあるリビング』の願いを叶えるためあえてホールを作らず広い玄関土間にすることでよ り視覚的な広がりを。リビングには大開口サッシ、 さらに上部の大きな吹 き抜けを見上げるとFIX窓からこぼれるような明るい光。ご家族が集まるリビングだからこそ妥協せず一緒に理想を叶えます。
通常、平屋は建築費が高くつく傾向にありますが、リズムホームのHIRAYAは徹底的に無駄を省き、適正価格でお客様のニーズに応える平屋プランです。
あきらめる前に、LIZUMHOMEのHIRAYAをご検討ください。
掲載しているプラン以外にもHIRAYAシリーズはございます。
-
HIRAYA 01 帰宅後の3way動線2,350 万円(参考価格)
平屋では生活動線が大切です。お買い物から帰ってきてすぐパントリーへ向かう『家事動線』、ご家族の帰宅時はウォークインクローゼットで着替 えてそのまま洗面・脱衣へ直行できる『生活動線』、来客の際などはご家族のプライベート空間である水周りを避けてリビングに向かえる『来客動線』。プライベート空間もご家族のコミュニケーションの場も守れる動線計画をご提案いたします。 -
HIRAYA 02 生活の中心に広がりのあるLDKを2,260 万円(参考価格)
限られた敷地の中で動線計画はもちろん、いかにLDKを充実させるか。LDKから繋がる外空間を設けることで、 室内からでもお庭の植栽を楽しんだり、外で遊ぶお子様をお料理しながら見守れるような計画です。LDK全体を勾配天井にして広がりを持たせるのもいかがでしょうか?